您好,欢迎进入上海钊妍过滤设备有限公司官网!

全国咨询热线

021-37580696

蓝式过滤器

在过滤器中,蓝式过滤器的精度属于一种最佳的过滤器,并且其滤网结构与其他的过滤器是不同的,因此,我们在定义其名字的时候也是根据其形状像篮子而定义为蓝式过滤器。通常用于类似于油的液体管道中,起到过滤的作用,其过滤面积往往大于通径面积的2-3倍。...
联系电话:021-37580696

产品详情

一、蓝式过滤器
在过滤器中,蓝式过滤器的精度属于一种最佳的过滤器,并且其滤网结构与其他的过滤器是不同的,因此,我们在定义其名字的时候也是根据其形状像篮子而定义为蓝式过滤器。通常用于类似于油的液体管道中,起到过滤的作用,其过滤面积往往大于通径面积的2-3倍。
二、蓝式过滤器的组成及工作原理
篮式过滤器由接管、主管、法兰、法兰盖、滤蓝及紧固件等多个部分组成。当流体经过管道进入过滤器的滤蓝后,过滤好的干净流体即可以通过滤蓝而排出;并且,需要清洗时,我们只需要打开旋开的主管底部,排出流体,将法兰盖拆开,从而去除滤蓝清洗,方便简洁的操作步骤让我们的使用显得更为方便。
篮式过滤器在水资源的处理上,篮式过滤器可谓是最好的帮手,它能够迅速的将水资源做出最好的处理效果,篮式过滤器在水资源缺乏的的问题上做了出了足够的文章,使篮式过滤器正在的成为了我国水资源紧缺的救星,真正的解决了这一难题。
三、蓝式过滤器的适用范围:

篮式过滤器除了在水资源污染方面有着显著的功效外,其紧凑的结构、适用范围的广阔及压损小、维护方便的优点,得到了各行各业的认可,主要包括:
1、制冷过程中的一些低温物料,例如:纯碱、浓稀硫酸、碳酸等;
2、在一些卫生有要求的生成过程,例如:饮料、啤酒等;
3、在化工中有腐蚀性的材料也会使用,如:烧碱、醛酸等;
4、常见的石油化工中遇到的弱腐蚀性物料,即,油品、烃类、水等。

EPL蓝式过滤器主要技术参数 

公称压力

壳体实验压力

压差

适用介质

介质温度

1.0

1.6

0.05-1.15

水、油、气

≤ 200


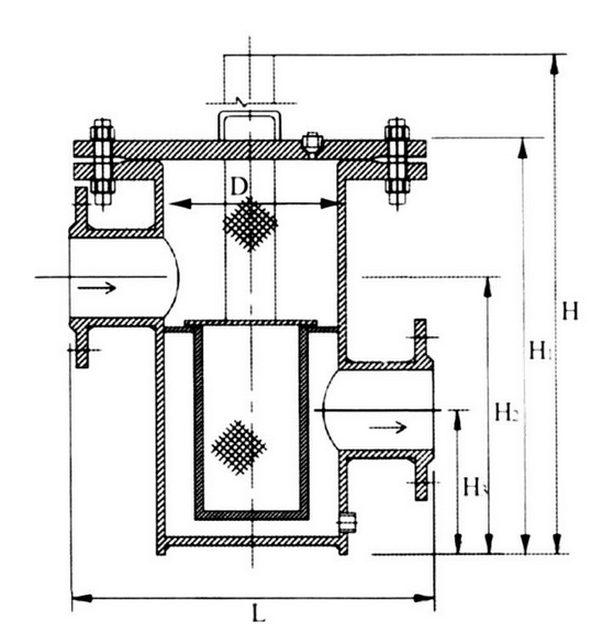
篮式过滤器 Basket-type strainer安装尺寸 Installstion dimensions

公称通径
DN(mm)
Nominal
pressure

L

D0

管塞
Pipe closure

SRB14直通式
Straight through type

SRB34高低式High-low type

H

H1

H

H1

H2

25

180

76

M14×1.5

260

160

280

110

180

32

200

76

M14×1.5

270

160

285

110

180

40

260

108

M14×1.5

300

170

340

120

220

50

260

108

M14×1.5

300

170

340

120

220

65

330

133

M14×1.5

360

210

400

160

270

80

340

159

M14×1.5

400

250

460

180

320

100

400

219

M14×1.5

470

300

550

220

390

125

480

273

M14×1.5

550

360

630

260

450

150

500

273

M14×1.5

630

420

720

310

530

200

560

325

M14×1.5

780

530

900

390

670

250

660

426

M20×1.5

930

640

1070

480

800

300

750

478

M20×1.5

1200

840

1360

640

1040


查看更多 >>

产品推荐

021-37580696